from the $609s
Includes home & GST
2
2.5
1,273 Sq.Ft.
Townhome
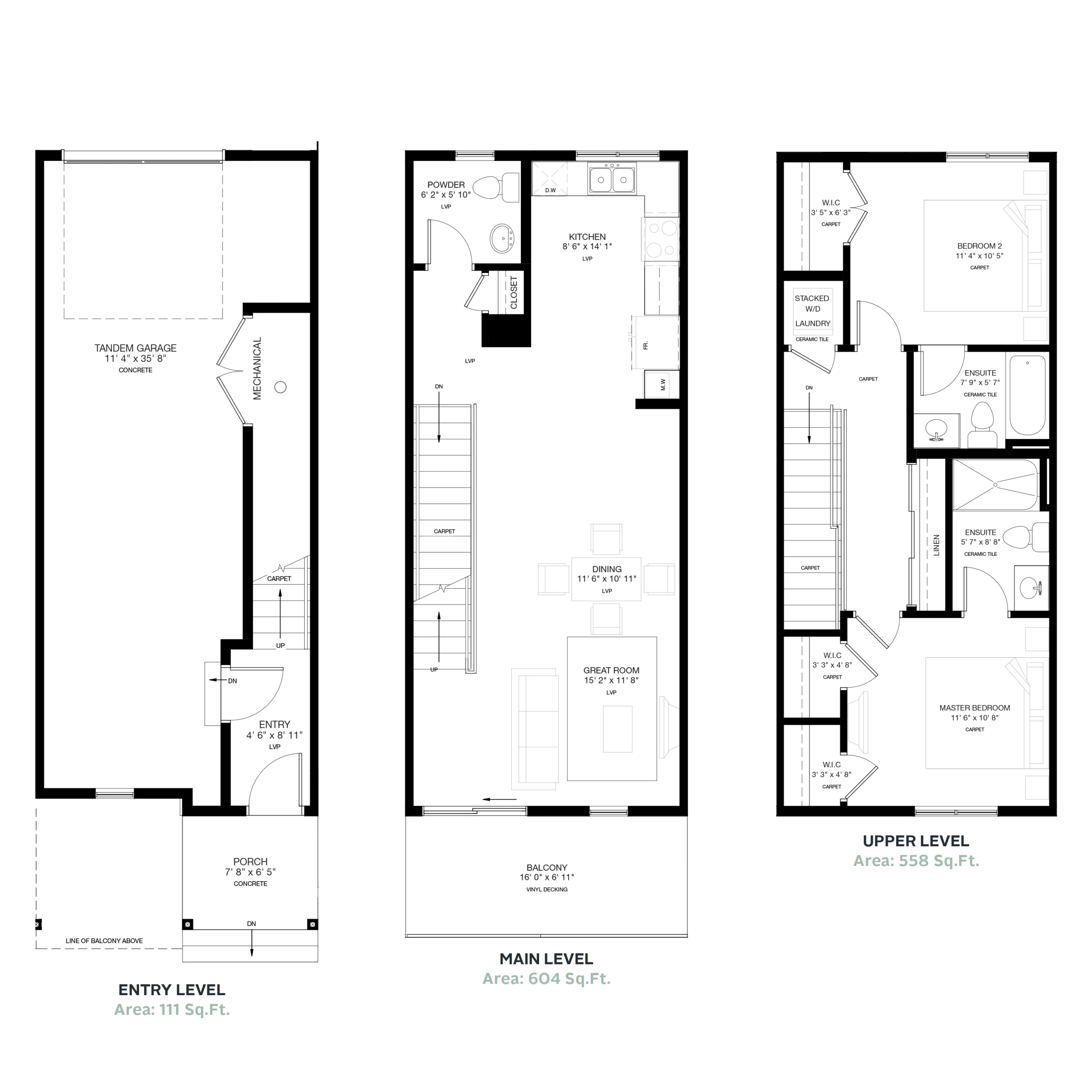
The Emerson
The Emerson offers a l-shaped kitchen tucked away from the dining and great room, perfect for separating cooking and entertainment spaces. Upstairs, the owner’s suite features a 4-piece ensuite and a dual entry walk-in closet.
What sets this Trico home apart:
Entry level office option
Main level kitchen peninsula & fireplace options
Tandem garage
Floorplans
Need a home fast?
Quick Possessions for this model
Sorry, all of our quick possessions for this model have been sold.
Please inquire about future builds and availabilty!
Contact UsLove this home? Book a tour and make it yours.
Our team can’t wait to show you around – and we’ll have answers to all of your questions about mortgages and financing too.



